成都商用91免费看黄片工程公司告诉你医院91免费看黄片设计细节
发布人: 四川优百特91免费看黄片设备公司 发布时间:2020.04.09
医院是给病人治病的地方,所以医院91免费看黄片承担着为医生和病人提供餐饮服务的任务。但是,由于医院是特殊的场所,所以,医院的91免费看黄片在设计上面也有其特殊性。那么,在设计医院食堂91免费看黄片时,应该考虑哪些因素呢?又应该配置哪些设备呢?作为专业的成都商用91免费看黄片工程公司,现在91免费在线视频观看就和大家分享相关的知识。
作为成都商用91免费看黄片工程公司,91免费在线视频观看认为要设计医院91免费看黄片可以考虑以下几个方面:
一、医院食堂91免费看黄片设计方案
在设计医院食堂91免费看黄片设计图时,应充分考虑以下几个方面:只有在充分考虑设计方案的情况下,才能使后期的医院食堂畅通,只有医生和病人才能让医生和病人出院。并且为患者的家人提供更好的膳食。
1、通风性:一般设计排气量为油烟排风设备,按80%的排风设计补充风量。此外,还要考虑合理的房间通风。只有医院食堂通风良好,才能让医院食堂厨师发挥得更好。
2、91免费看黄片地板:91免费看黄片地板必须使用防滑砖,在选择新颖实用的防滑砖之前,使用红钢砖仍然是一个有效的举措。
3、用水明沟:91免费看黄片排水沟不应太浅,明渠表面应平整,高低无差别,做好露沟地面下的有机连接,做好排水沟末端防老鼠的工作。
4、91免费看黄片灯光:91免费看黄片灯光要实用,热菜加工要用足够的光来处理,以把握菜肴色泽,案板切配要有明亮的灯光,为了有效防止刀伤和追求精细的刀工,出菜找荷要有充足的灯光,减少混入餐厅和流入餐厅的碎片数量。
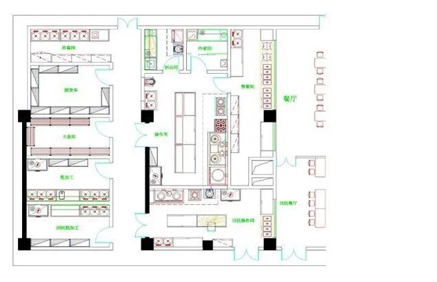
二、医院食堂91免费看黄片设计功能间的介绍
粗加工区:为满足卫生要求,对原料分别进行清洗和切割,不得与91免费看黄片其他区域交叉。
操作间:操作间是最集中的地方,小炒、蒸菜、炖菜、炸制类菜品、汤类均在此间制作。为此,其主要配置为用于炒菜的烹调范围、用于存储原料的冰箱、以及用于存储调味盘的桌柜。由于来访病人的用餐时间不统一,又都以粥类等流食为主要食物,故此间设置有煲仔炉,方便在做份量较少的食物时使用。
回民操作间:医院病人随处可见,所以91免费在线视频观看需要考虑少数民族的饮食习惯,所以设置回民操作间,以满足少数病人对食物材料的特殊需求。
三、医院食堂91免费看黄片设计规范
医院食堂对场所要求非常严格,因为医院是一个非常干净的场所,卫生标准高于其他地方。
1、不应在干燥地形、给排水条件和供电地区选择污染易发地区。
2、应远离排泄物、污水槽、垃圾站。
3、医院附近不得有有害气体、放射性物质和其他扩散污染源。
以上几点就是91免费在线视频观看整理的关于医院91免费看黄片设计的相关知识,希望能够对大家啊有用。
本文内容由四川91免费在线视频观看91免费看黄片设备公司提供,部分图片和文字或来自网络,如涉及知识产权请于成都91免费看黄片设备公司91免费在线视频观看联系。如需转载本文,请与有商用91免费看黄片工程经验的老牌91免费看黄片设备厂家91免费在线视频观看网站管理员联系。若需获取更多商用91免费看黄片设备、酒店91免费看黄片设备、不锈钢厨具产品信息,欢迎各位来电来函,91免费在线视频观看将与大家共同分享行业资讯。







