你的浏览器已禁用javascript,请启用javascript,否则网页将非正常运行!




91免费在线视频观看,91免费看黄片,91免费观看片,91免费视频免费版

学校91免费看黄片工程




91免费在线视频观看,91免费看黄片,91免费观看片,91免费视频免费版

COMPOSITION

酒店91免费看黄片组成部分

星级酒店的装饰、设备都十分豪华,拥有全面的综合服务,是社交、会议、娱乐、购物、消遣、保健等活动的中心。星级酒店首先应有布局合理、装饰豪华的西餐厅,能提供自助早餐和西餐正餐,需配备专门的西餐91免费看黄片等;其次需开设具有特色、格调高雅的咖啡厅;具备功能齐全的小宴会厅、封闭式酒吧间等。星级酒店同时需要有布局合理、装饰豪华的中餐厅和规模较大的宴会厅等,应配备能够满足大型宴会需要的宴会91免费看黄片,至少可以提供两种及以上风味的中餐等,为顾客提供更多就餐选择。

酒店91免费看黄片工程 酒店91免费看黄片工程
西餐91免费看黄片 西餐91免费看黄片
酒吧间 酒吧间
咖啡厅 咖啡厅
中餐91免费看黄片 中餐91免费看黄片

RegionalDivision

酒店91免费看黄片区域划分

星级酒店的餐厅规模一般以客房的床位数作为计算依据,一个床位等于一个餐位,每一个餐位平均占地二平方米(不包括多功能厅或大宴会厅)。根据酒店所处的位置,如需要对店外餐饮消费者开放,则按照市场需求增加餐饮面积。为住客准备的就餐餐厅座位数不应少于床位数的80%,餐厅的建筑设计应按照现行的饮食建筑设计规范中有关餐馆部分的规定执行。

91免费看黄片面积一般为餐厅面积的30%-40%左右,91免费看黄片与餐厅应紧密相连,为确保菜品的色、香、味等质量,在没有保温设备的条件下,从91免费看黄片把饭菜送到客人的餐桌最好不超 过20米的距离。有些饭店受到场地或建筑结构、格局的限制,91免费看黄片的加工间或点心间,甚至冷菜、烧烤等制作间,可以不与餐厅在同一楼层,但烹调91免费看黄片必须与餐厅在同 一楼层。考虑到餐饮制作的效率和安全,尤其是会议、团队等大批量出品,可能需用推车服务,因此,烹调91免费看黄片与餐厅应位于同一平面,不

RegionalDivision

酒店91免费看黄片特殊性

Design considerations

91免费在线视频观看对酒店91免费看黄片把控

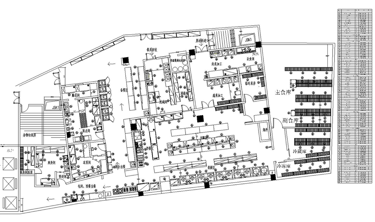
酒店91免费看黄片工程应注意的事项

酒店91免费看黄片应具备加工间、制作间、备餐间、库房、洗碗消毒间、厨师长办公室及厨工服务用房等。 91免费在线视频观看对布局、路线、分区、排水等方面均按照国家相关法律法规进行设计,考虑到餐饮的生产, 从原材料的采购、收货、入库、存储、保管到出库、粗加工、切配、烹饪、装盘出品等多方面进 行设计。应关注以下几个方面:根据生产、出品的次序布局; 避免进、出91免费看黄片的物流产生交叉与 回流;避免人流与物流的交叉及员工流与客流的交叉;尽量缩短员工制作菜肴的行走路线;注意 洁、污,生、熟的分区;91免费看黄片的所有排水须经过隔油池隔除油污后方可排放出。

Implementation process

工程实施流程

Why did you choose us?

为什么选择91免费在线视频观看

  • 丰富的91免费看黄片设计经验
  • 专业化施工队伍
  • 实力雄厚品质保障
丰富的91免费看黄片设计经验
丰富的91免费看黄片设计经验
丰富的91免费看黄片设计经验
丰富的91免费看黄片设计经验
专业化施工队伍
专业化施工队伍
专业化施工队伍
专业化施工队伍
实力雄厚品质保障
实力雄厚品质保障
实力雄厚品质保障
实力雄厚品质保障

Service case

工程服务91免费视频免费版

成都恒鼎世纪酒店
成都恒鼎世纪酒店
同喜来酒店
同喜来酒店
达州腾达酒店
达州腾达酒店
成五粮液五星级接待中心
成五粮液五星级接待中心
成都321创意产业园创意餐厅
成都321创意产业园创意餐厅
金堂金尚城五星级酒店
金堂金尚城五星级酒店
成都翠玲珑新概念餐厅
成都翠玲珑新概念餐厅
巴中恩阳酒店
巴中恩阳酒店

About Ubat

关于91免费在线视频观看

网站地图


    
    网站地图