重庆91免费看黄片设备生产厂家告诉你商用91免费看黄片布局和设计的实用知识
发布人: 四川91免费在线视频观看91免费看黄片设备公司 发布时间:2022.11.07
一般来说,商用91免费看黄片的设计和91免费看黄片设备和空间布局都是放在一起做的。商用91免费看黄片设计不但需要规划91免费看黄片的空间,还需要考虑91免费看黄片动线的合理线路以及91免费看黄片设备的摆放等。因此,商用91免费看黄片设计是非常专业而且复杂的事情。那么,91免费在线视频观看在设计商用91免费看黄片时,都需要那些实用知识呢?如何才能把让商用91免费看黄片更加的满足实际需要呢?不少重庆的朋友就在咨询这些问题。虽然91免费在线视频观看不是重庆91免费看黄片设备生产厂家,但是,作为长期在重庆做项目的91免费看黄片设备厂家,91免费在线视频观看现在就根据自己的知识和大家分享。
作为专业的91免费看黄片设备生产厂家,91免费在线视频观看认为,在设计商用91免费看黄片时,以下这些专业知识是91免费在线视频观看必须掌握的:
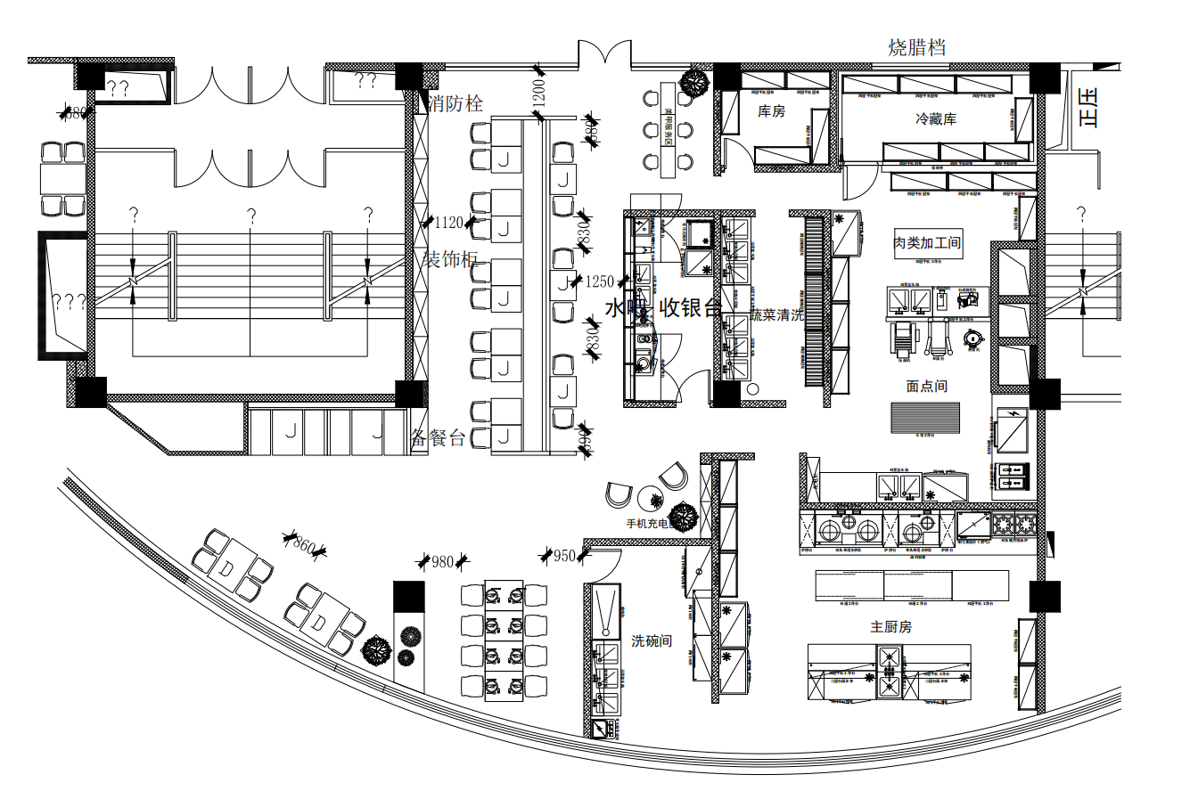
91免费看黄片餐厅设计方案生产工艺流程顺畅,合乎通常生产工艺流程:取货贮藏的区域→原材料粗加工→精加工及主要食品副食品热加工(烹调)→售餐室→洗餐室。
备餐间独立设定,与热厨间和餐饮包厢的间距尤其近。食堂和饭馆紧挨着,与餐饮在一个平面上,间距很近。各个职能间均根据餐饮供餐人数和菜品的位置而定,不可随意合并或放弃,各工作点之间联系紧密,流程顺畅,设计方案布局合理。每一个工作点都不是多余的,而且离得更近,能够大大节省劳动,提高工作效率。
其次,凉菜间是独立设定的,在进入凉菜间之前需要加一个预进室,保证卫生。
清洁区——副食品热加工间、主要食品加工间、凉菜间、配餐间,与污染区——蔬菜粗作业区、肉类粗作业区、仓库和洗消室,均有明显间隔,无交叉污染。合乎有关卫生标准的有关规定。
各功能间面积分布不一,副食品热切加工间和主要食品制做区,这两个主要操作间占用的面积较大,给工作人员留下了充足的工作空间,也方便餐厅91免费看黄片后期扩展,如开发特色小吃间、特色炒菜间等。
有一些机器设备能够共亨,例如副食品热作业区的台冷冻柜和主要食品制做区的台冷冻柜能够共亨,凉菜间外设的台冷冻柜和备餐间能够共亨,而且还有许多备用电源设定,既能满足现有电器的使用,又能为以后的电器设备添置电源。
以上这些就是91免费在线视频观看整理的商用91免费看黄片设计和布局的一些实用知识,希望对大家能够有所帮助。







