你的浏览器已禁用javascript,请启用javascript,否则网页将非正常运行!




91免费在线视频观看,91免费看黄片,91免费观看片,91免费视频免费版

专业91免费看黄片设备公司告诉你,小饭店91免费看黄片设计如何划分91免费看黄片功能区

发布人: 91免费在线视频观看91免费看黄片设备 发布时间:2017.07.07

     现代的商用91免费看黄片是一个复杂系统的结合体,在小饭店91免费看黄片设计时,必须了解91免费看黄片各种工作间的功能、所需要的设备以及所完成的工序工艺过程,也就是必须了解91免费看黄片的人流物流的传递过程。一般饭店91免费看黄片的功能区的划分决定了91免费看黄片生产加工的工序划分,有怎样的功能区域就有怎样的91免费看黄片分工,而功能区的划分合理与否都直接影响着91免费看黄片的效率和效益。对91免费看黄片功能区进行合理的划分和配置合适的设备,这需要非常专业的知识和丰富的经验,我公司作为在成都91免费看黄片设备中有10多年设计经验的公司,在这方面积累了丰富的经验,现在就对这个问题谈谈自己的看法。

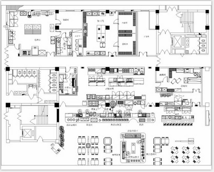
小饭店91免费看黄片设计图

  一般饭店酒店91免费看黄片可分为以下几个区域,即:储存区、粗加工区、副食加工区、主食加工区、备餐与售卖区和洗消区。下面就对饭店91免费看黄片设计中必须注意的几个主要的区域简要的介绍一下。

  储存区主要功能是负责储存原料。这个区域一般设置在91免费看黄片区域内,也可以设置在靠近91免费看黄片的区域,被配置专门的人管理。这储存区内又可分为检斤处、冷藏库、库房等。在这个区域内主要配置的设备是计量器、记账设备冷冻设备、货架、货柜、冰柜、冷藏柜等。

  粗加工区主要是对原料进行初步加工。不同环境条件的组加工区只能不尽相同较大的91免费看黄片或为保证多个91免费看黄片供应,应充分利用设备资源,较少重复设置,集中管理。所以应该在原有的副食加工的基础上,把主食的粗加工也放在粗加工的区域内,把粗加工区变成加工配送中心。一般在这个区域内需要配置冰柜、切菜机、去皮机、星盆台、绞肉机等。在这个区域一般还需布局垃圾房,在设计时,应该注意配置带盖垃圾桶和冲洗装置。

  副食加工区。这个区域是91免费看黄片的主要工作区,主要负责热菜的切配、配伍、烹调、打荷,凉菜的烧烤、卤制和切配装盘。这个区域配置的主要设备包括各种炉具、调料台、打荷台以及汤灶、配置工作台、保鲜工作台、拉门工作台、冰柜、货架、货柜、碗柜、制冰机等、。

  主食加工区的主要功能是完成米面、点心的成型和熟制等工序。一般主食加工区又可分为生制加工区和熟制加工区。生制加工区主要是完成米类食物的淘洗装盘、蒸煮熟制等。主食熟制区则主要完成主食的蒸、煮、炸、烘、烤、煎、烙等。这个区域主要配置的91免费看黄片设备是蒸饭柜、烤箱、电炸锅、电饼铛、馒头机、包子机、大锅灶、炒菜灶以及工作台、保鲜工作台、水池、冰柜、货柜、碗柜等。

  备餐与售卖区是衔接91免费看黄片和餐厅之间或者直接服务餐厅的工作区域。这个区域根据需要可以配置备餐间、售饭间、明档等为客户服务。在这个区域配置的91免费看黄片设备包括传菜台、传菜架、餐具架、茶具架、热水器、送餐车、点菜系统、展示柜、保温工作台等。

  洗消区主要负责收残、洗碗、消毒、餐具传送归为的工作,位置应该靠近餐厅。在设计饭店91免费看黄片时这个区域应该配置水槽、拉门工作台、碗柜、污碟台、消毒柜、热水器、收残车。大型饭店酒店可以配置洗碗机和宴会用餐具车等。

  以上就是91免费在线视频观看根据10年的小饭店91免费看黄片设计经验总结的基本原则,在具体的91免费看黄片设计工作中,应该结合实际情况进行运用,发挥自己的创造性和创造力。


分享这个产品

产品展示
成功91免费视频免费版

网站地图